(Προς Πώληση) Κατοικία Διαμέρισμα || Αθήνα Κέντρο/Δάφνη - 50 τ.μ, 1 Υ/Δ, 165.000€

Χαρακτηριστικά

  •  Υ/Δ: 1
  •  Μπάνια: 1
  •   Όροφος: 1ος
  •   WC:
  •   Έτος Κατασκευής: 2023
  •   Parkings:

Περιοχή: Δάφνη (Δ. Δάφνης-Υμηττού)
Υποπεριοχή: Άνω Δάφνη
Τιμή: 165.000€
Εμβαδόν: 50
Κατηγορία: Κατοικίες
Τύπος: Διαμέρισμα
Κατάσταση: υπό κατασκευή
Τιμή/τ.μ.: 3.300€
Τ.μ. Οικοπέδου:
Θέα:
Θέρμανση: Ατομική - Αέριο
Επίπεδα:
Κωδικός: 1600088
Κωδικός: 14125
 

Επιπλέον Χαρακτηριστικά

Ασανσέρ Πόρτα Ασφαλείας Αποθήκη Τζάκι Διπλά Τζάμια Βεράντες Metro Πολυτελές Διαμπερές Φωτεινό Νεόδμητο
 

Περιγραφή

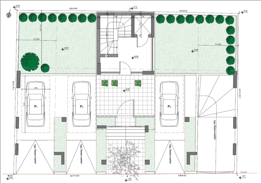
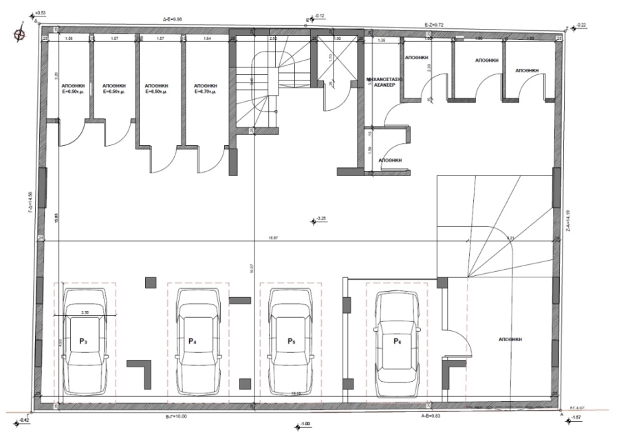
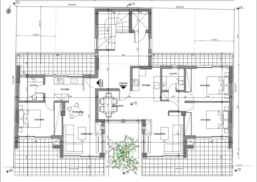
Διαμέρισμα υπο κατασκευή, 1ου ορόφου πολυτελούς κατασκευής και υψηλής ενεργειακής απόδοσης. Εχει ένα άνετο υπνοδωμάτιο και σαλόνι ενιαίο με την κουζινα. Η θέρμανση θα είναι ατομική, τα κουφώματα αλουμινίου με διπλά τζάμια, τα δάπεδα από πλακάκι, Θα έχει πόρτα ασφαλείας, προεγκατάσταση για ηλιακό και συναγερμό. Ειναι διαμπερές και πολύ φωτεινο κι εχει άνετό μπαλκόνι. Στο διαμερισμα αντιστοιχει μια αποθηκη στο υπογειο και υπάρχει δυνατότητα αγοράς θεσης σταθμευσης στην πυλωτή η οποία χρεώνεται έξτρα 25,000 ή στο υπόγειο με 30.000€. Βρίσκεται σε πολύ προνομιακό σημείο κοντά σε στάση μετρό και αγορά. Αποπεράτωση καλοκαίρι 2027
 

Αναλυτική Περιγραφή

Διαμέρισμα υπο κατασκευή, 1ου ορόφου  πολυτελούς κατασκευής και υψηλής ενεργειακής απόδοσης. Εχει ένα άνετο υπνοδωμάτιο και σαλόνι ενιαίο με την κουζινα. Η θέρμανση θα είναι ατομική, τα κουφώματα αλουμινίου με διπλά τζάμια, τα δάπεδα από πλακάκι, Θα έχει πόρτα ασφαλείας, προεγκατάσταση για ηλιακό και συναγερμό. Ειναι διαμπερές και πολύ φωτεινο κι εχει άνετό μπαλκόνι. Στο διαμερισμα αντιστοιχει μια αποθηκη στο υπογειο και υπάρχει δυνατότητα αγοράς θεσης σταθμευσης στην πυλωτή η οποία χρεώνεται έξτρα 25,000 ή στο υπόγειο με 30.000€.
Βρίσκεται σε πολύ προνομιακό σημείο κοντά σε στάση μετρό και αγορά.  Αποπεράτωση καλοκαίρι 2027
Μεσιτικό γραφείο mesitis.gr, 2109802660. Για περισσότερα ακίνητα, επισκεφθείτε την ιστοσελίδα μας www.mesitis.gr
 

Χάρτης

Στατιστικά Ακινήτου

Δημοσίευση Ακινήτου: 28 Αυγ, 2023
Τελευταία ενημέρωση: 08 Δεκ, 2025
 

Με Ενδιαφέρει το ακίνητο

*
*
Τα πεδία με * είναι υποχρεωτικά
Εισάγετε τον κωδικό

Ενεργειακό Πιστοποιητικό

A+

Εργαλεία

Υπολογισμός Δανείου
Συμπληρώστε το Επιτόκιο (χωρίς το σύμβολο %} και τη Διάρκεια αποπληρωμής σε έτη. Αν επιθυμείτε μπορείτε να αλλάξετε και το ποσό
(%)
Νόμισμα

Δείτε ακόμα

Δάφνη

200.000€

57τ.μ.


Δάφνη

161.000€

46τ.μ.


Δάφνη

185.000€

50τ.μ.


Διαδώστε το

logo (Προς Πώληση) Κατοικία Διαμέρισμα || Αθήνα Κέντρο/Δάφνη - 50 τ.μ, 1 Υ/Δ, 165.000€



Χαρακτηριστικά

Περιοχή: Δάφνη (Δ. Δάφνης-Υμηττού)
Υποπεριοχή: Άνω Δάφνη
Τιμή: 165.000€
Εμβαδόν: 50
Κατηγορία: Κατοικίες
Τύπος: Διαμέρισμα
Κατάσταση: υπό κατασκευή
Τιμή/τ.μ.: 3.300€
Υ/Δ: 1
WC:
Μπάνια: 1
Όροφος: 1ος
Έτος Κατασκευής: 2023
Τ.μ. Οικοπέδου:
Θέα:
Parkings
Θέρμανση: Ατομική - Αέριο
Επίπεδα:
ID code: 1600088
Κωδικός: 14125
 

Περιγραφή

Διαμέρισμα υπο κατασκευή, 1ου ορόφου πολυτελούς κατασκευής και υψηλής ενεργειακής απόδοσης. Εχει ένα άνετο υπνοδωμάτιο και σαλόνι ενιαίο με την κουζινα. Η θέρμανση θα είναι ατομική, τα κουφώματα αλουμινίου με διπλά τζάμια, τα δάπεδα από πλακάκι, Θα έχει πόρτα ασφαλείας, προεγκατάσταση για ηλιακό και συναγερμό. Ειναι διαμπερές και πολύ φωτεινο κι εχει άνετό μπαλκόνι. Στο διαμερισμα αντιστοιχει μια αποθηκη στο υπογειο και υπάρχει δυνατότητα αγοράς θεσης σταθμευσης στην πυλωτή η οποία χρεώνεται έξτρα 25,000 ή στο υπόγειο με 30.000€. Βρίσκεται σε πολύ προνομιακό σημείο κοντά σε στάση μετρό και αγορά. Αποπεράτωση καλοκαίρι 2027
 
Loading...