(Προς Πώληση) Κατοικία Μεζονέτα || Αθήνα Κέντρο/Δάφνη - 110 τ.μ, 3 Υ/Δ, 418.000€

Χαρακτηριστικά

  •  Υ/Δ: 3
  •  Μπάνια: 1
  •   Όροφος: 4ος
  •   WC: 1
  •   Έτος Κατασκευής: 2023
  •   Parkings:

Περιοχή: Δάφνη (Δ. Δάφνης-Υμηττού)
Υποπεριοχή: Άνω Δάφνη
Τιμή: 418.000€
Εμβαδόν: 110
Κατηγορία: Κατοικίες
Τύπος: Μεζονέτα
Κατάσταση: υπό κατασκευή
Τιμή/τ.μ.: 3.800€
Τ.μ. Οικοπέδου:
Θέα: Καλή
Θέρμανση: Ατομική - Αέριο
Επίπεδα: 2
Κωδικός: 1600083
Κωδικός: 14120
 

Επιπλέον Χαρακτηριστικά

Ασανσέρ Πόρτα Ασφαλείας Αποθήκη Τζάκι Διπλά Τζάμια Βεράντες Metro Πολυτελές Ρετιρέ Διαμπερές Φωτεινό Νεόδμητο
 

Περιγραφή

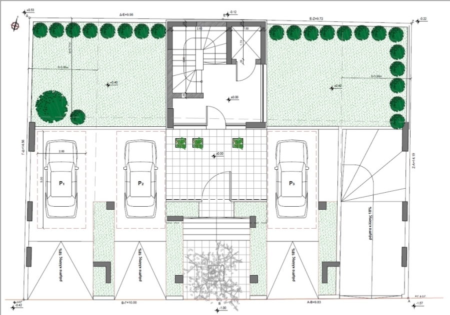
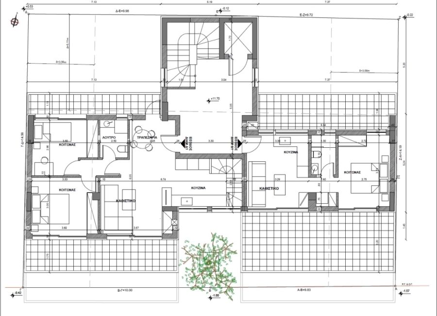
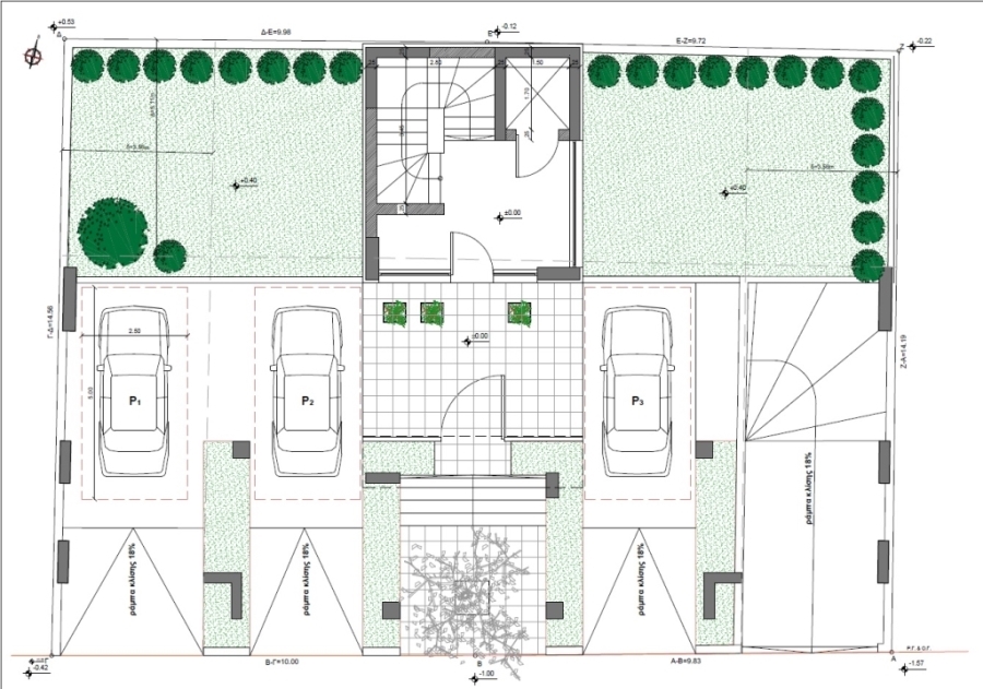
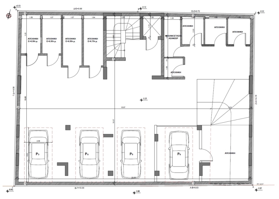
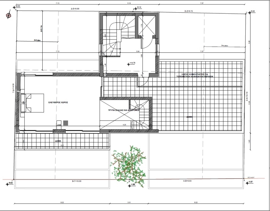
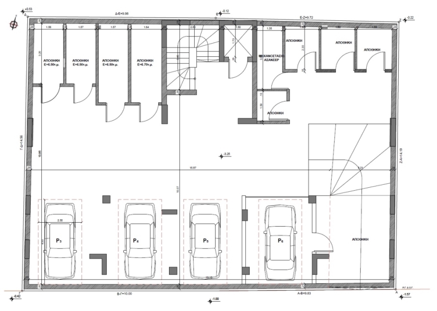
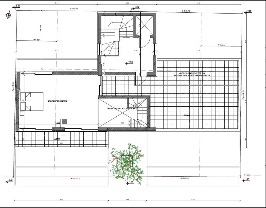
Μεζονέτα ρετιρέ υπο κατασκευή 110 τμ, 4ου ορόφου με σοφίτα πολυτελούς κατασκευής και υψηλής ενεργειακής απόδοσης. Εχει τρία υπνοδωμάτια (το τρίτο στην σοφίτα με μεγάλη βεράντα), σαλόνι ενιαίο με την κουζινα, μπανιο και wc. Η θέρμανση θα είναι ατομική, τα κουφώματα αλουμινίου με διπλά τζάμια, τα δάπεδα από πλακάκι, Θα έχει πόρτα ασφαλείας, προεγκατάσταση για ηλιακό και συναγερμό. Ειναι διαμπερές και πολύ φωτεινο κι εχει άνετο μπαλκόνι. Στο διαμερισμα αντιστοιχει μια αποθηκη στο υπογειο και υπάρχει δυνατότητα αγοράς θεσης σταθμευσης στην πυλωτή η οποία χρεώνεται έξτρα 25,000 ή στο υπόγειο με 30.000€. Βρίσκεται σε πολύ προνομιακό σημείο κοντά σε στάση μετρό και αγορά. Αποπεράτωση καλοκαίρι 2027
 

Αναλυτική Περιγραφή

Μεζονέτα ρετιρέ υπο κατασκευή 110 τμ, 4ου ορόφου με σοφίτα  πολυτελούς κατασκευής και υψηλής ενεργειακής απόδοσης. Εχει τρία  υπνοδωμάτια (το τρίτο στην σοφίτα με μεγάλη βεράντα), σαλόνι ενιαίο με την κουζινα, μπανιο και wc.  Η θέρμανση θα είναι ατομική, τα κουφώματα αλουμινίου με διπλά τζάμια, τα δάπεδα από πλακάκι, Θα έχει πόρτα ασφαλείας, προεγκατάσταση για ηλιακό και συναγερμό. Ειναι διαμπερές και πολύ φωτεινο κι εχει άνετο μπαλκόνι. Στο διαμερισμα αντιστοιχει μια αποθηκη στο υπογειο και υπάρχει δυνατότητα αγοράς θεσης σταθμευσης στην πυλωτή η οποία χρεώνεται έξτρα 25,000 ή στο υπόγειο με 30.000€. Βρίσκεται σε πολύ προνομιακό σημείο κοντά σε στάση μετρό και αγορά.  Αποπεράτωση καλοκαίρι 2027
 Μεσιτικό γραφείο mesitis.gr, 2109802660. Για περισσότερα ακίνητα, επισκεφθείτε την ιστοσελίδα μας www.mesitis.gr
 

Χάρτης

Στατιστικά Ακινήτου

Δημοσίευση Ακινήτου: 28 Αυγ, 2023
Τελευταία ενημέρωση: 08 Δεκ, 2025
 

Με Ενδιαφέρει το ακίνητο

*
*
Τα πεδία με * είναι υποχρεωτικά
Εισάγετε τον κωδικό

Ενεργειακό Πιστοποιητικό

A+

Εργαλεία

Υπολογισμός Δανείου
Συμπληρώστε το Επιτόκιο (χωρίς το σύμβολο %} και τη Διάρκεια αποπληρωμής σε έτη. Αν επιθυμείτε μπορείτε να αλλάξετε και το ποσό
(%)
Νόμισμα

Διαδώστε το

logo (Προς Πώληση) Κατοικία Μεζονέτα || Αθήνα Κέντρο/Δάφνη - 110 τ.μ, 3 Υ/Δ, 418.000€



Χαρακτηριστικά

Περιοχή: Δάφνη (Δ. Δάφνης-Υμηττού)
Υποπεριοχή: Άνω Δάφνη
Τιμή: 418.000€
Εμβαδόν: 110
Κατηγορία: Κατοικίες
Τύπος: Μεζονέτα
Κατάσταση: υπό κατασκευή
Τιμή/τ.μ.: 3.800€
Υ/Δ: 3
WC: 1
Μπάνια: 1
Όροφος: 4ος
Έτος Κατασκευής: 2023
Τ.μ. Οικοπέδου:
Θέα: Καλή
Parkings
Θέρμανση: Ατομική - Αέριο
Επίπεδα: 2
ID code: 1600083
Κωδικός: 14120
 

Περιγραφή

Μεζονέτα ρετιρέ υπο κατασκευή 110 τμ, 4ου ορόφου με σοφίτα πολυτελούς κατασκευής και υψηλής ενεργειακής απόδοσης. Εχει τρία υπνοδωμάτια (το τρίτο στην σοφίτα με μεγάλη βεράντα), σαλόνι ενιαίο με την κουζινα, μπανιο και wc. Η θέρμανση θα είναι ατομική, τα κουφώματα αλουμινίου με διπλά τζάμια, τα δάπεδα από πλακάκι, Θα έχει πόρτα ασφαλείας, προεγκατάσταση για ηλιακό και συναγερμό. Ειναι διαμπερές και πολύ φωτεινο κι εχει άνετο μπαλκόνι. Στο διαμερισμα αντιστοιχει μια αποθηκη στο υπογειο και υπάρχει δυνατότητα αγοράς θεσης σταθμευσης στην πυλωτή η οποία χρεώνεται έξτρα 25,000 ή στο υπόγειο με 30.000€. Βρίσκεται σε πολύ προνομιακό σημείο κοντά σε στάση μετρό και αγορά. Αποπεράτωση καλοκαίρι 2027
 
Loading...